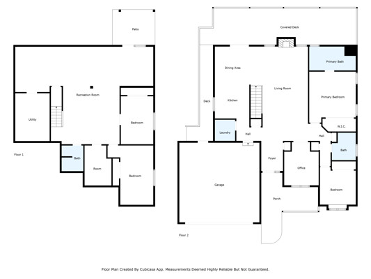
201 Plateau St
Shelby, Iowa 51570
$495,000
4 Beds
3 Baths
2,830 SQ. FT.
0.55 acre lot
201 Plateau St
Shelby, Iowa 51570
$495,000
4 Beds
3 Baths
2,830 SQ. FT.
0.55 acre lot
Overview
Features
Type
Single Family Home
Lot Size
0.55 acre lot
Garage
2
Stories
1
Price
$495,000
MLS#
25-1462
Style
Ranch
Location
Local Weather
|
|
|
|
|
|
|
|
* This information is deemed reliable but not guaranteed and has not been verified